
Pour toute demande d'informations, l'agence est disponible au 04 77 67 91 72
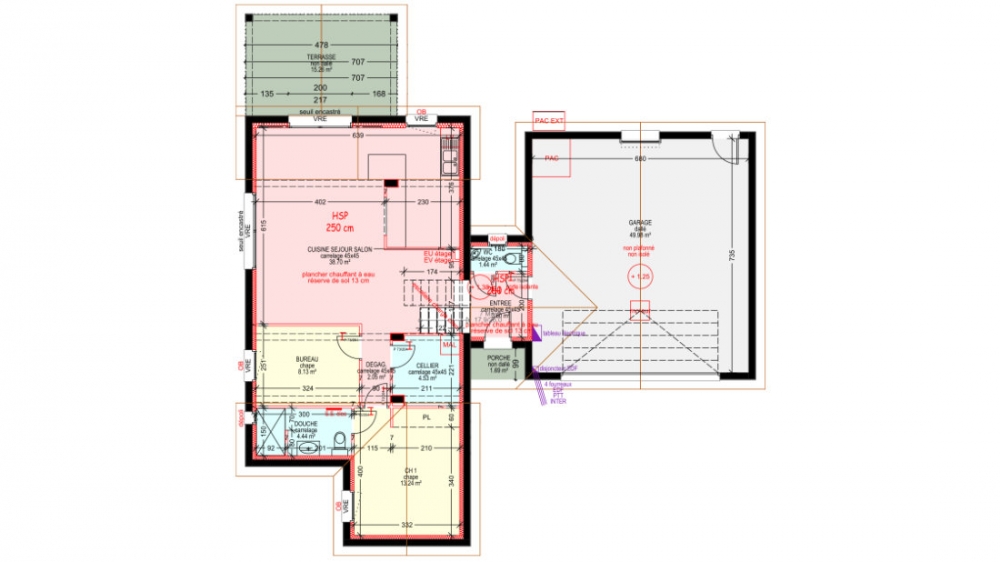
Maison avec étage comportant 3 chambres, un bureau, une pièce de rangement, 2 salles de bains, 2 WC, une cuisine ouverte sur un séjour, un cellier, une entrée, un grand garage, un porche et une terrasse.
113 m² - Réf. : MS149
Dermander + d'informations.




