
Pour toute demande d'informations, l'agence est disponible au 04 77 67 91 72
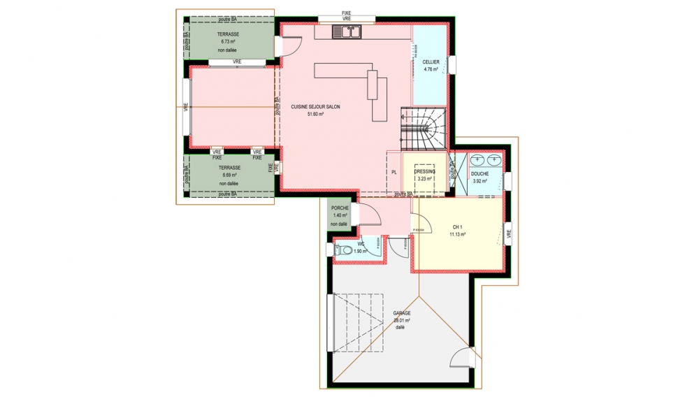
Maison avec étage comportant 4 chambres, un dressing, 2 salles de bains, 2 WC, un cellier, une cuisine ouverte sur un grand séjour, 2 terrasse, un porche, un hall d'entrée et un garage.
118 m² - Réf. : MS70
Dermander + d'informations.




