
Pour toute demande d'informations, l'agence est disponible au 04 77 67 91 72
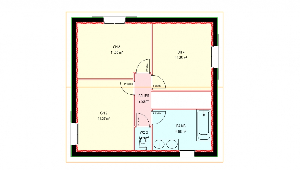
Maison avec étage comportant 4 chambres, 2 salles de bain, 2 WC, une cuisine indépendante, un grand séjour, un cellier, un porche, une terrasse et un grand garage.
123 m² - Réf. : MS53
Dermander + d'informations.




