
Pour toute demande d'informations, l'agence est disponible au 04 77 67 91 72
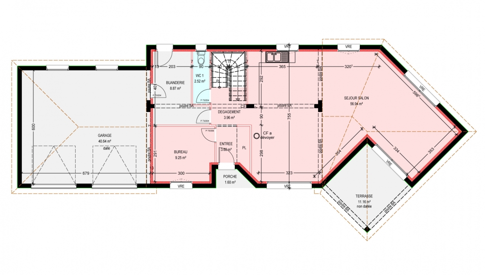
Maison avec étage comportant 3 chambres et un bureau, un dressing, 2 WC, une buanderie, une cuisine ouverte sur un très grand séjour, un hall d'entrée, un porche, une terrasse et un grand garage.
135 m² - Réf. : MS41
Dermander + d'informations.



