
Pour toute demande d'informations, l'agence est disponible au 04 77 67 91 72
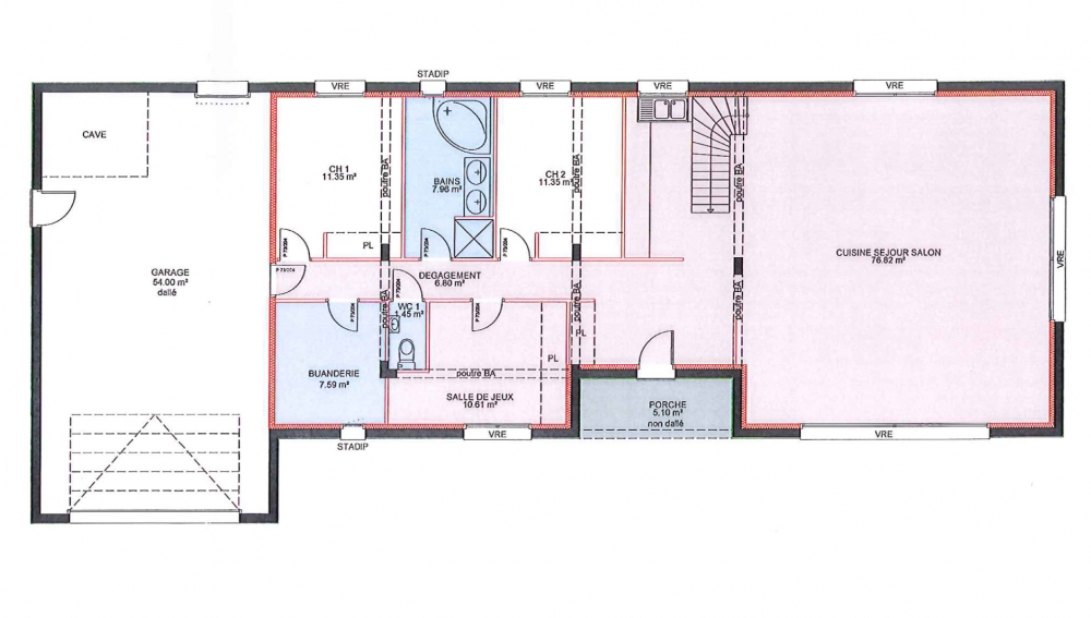
Maison à toit plat avec étage comportant 3 chambres, 2 salles de bains, 2 WC, un dressing, une mezzanine, une salle de jeu, une cuisine ouverte sur un très grand séjour, une cave et un grand garage.
173 m² - Réf. : MS34
Dermander + d'informations.

