
Pour toute demande d'informations, l'agence est disponible au 04 77 67 91 72
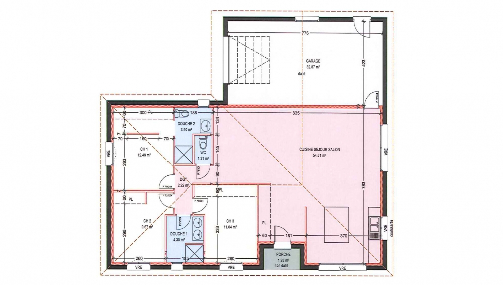
Maison de plain pied avec 3 chambres, 2 salles de bains, une cuisine ouverte sur un grand séjour, un porche et un grand garage.
100 m² - Réf. : MS37
Dermander + d'informations.



