Maisons plain pied 3 chambres de 104 m² construite par Demeures Familiales


Pour toute demande d'informations, l'agence est disponible au 04 77 67 91 72

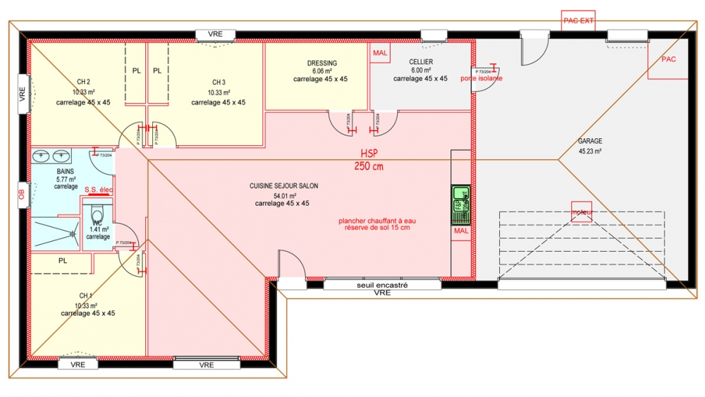
Maisons plain pied 3 chambres

Maison de plain pied avec 3 chambres, un dressing, un cellier, un grand séjour avec cuisine ouverte et un grand garage.

104 m² - Réf. : MS123

Dermander + d'informations.