
Pour toute demande d'informations, l'agence est disponible au 04 77 67 91 72
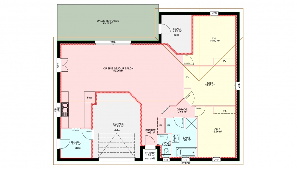
Maison de plain pied avec 3 chambres, un cellier, une pièce de rangement, une cuisine ouverte sur un grand séjour, un porche, une terrasse et un garage.
110 m² - Réf. : MS45
Dermander + d'informations.



