
Pour toute demande d'informations, l'agence est disponible au 04 77 67 91 72
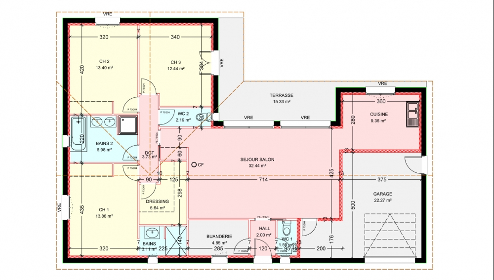
Maison de plain pied avec 3 chambres, 2 salles de bain, un dressing, une buanderie, hall d'entrée, cuisine indépendante, séjour, terrasse et garage.
112 m² - Réf. : MS28
Dermander + d'informations.


