
Pour toute demande d'informations, l'agence est disponible au 04 77 67 91 72
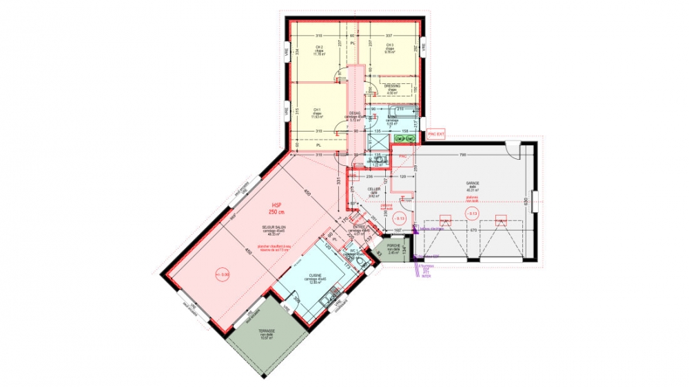
Maison de plain pied avec 3 chambres et un dressing, une cuisine indépendante, un grand séjour, 2 WC, un cellier, un grand garage, une terrasse et un porche.
116 m² - Réf. : MS156
Dermander + d'informations.



