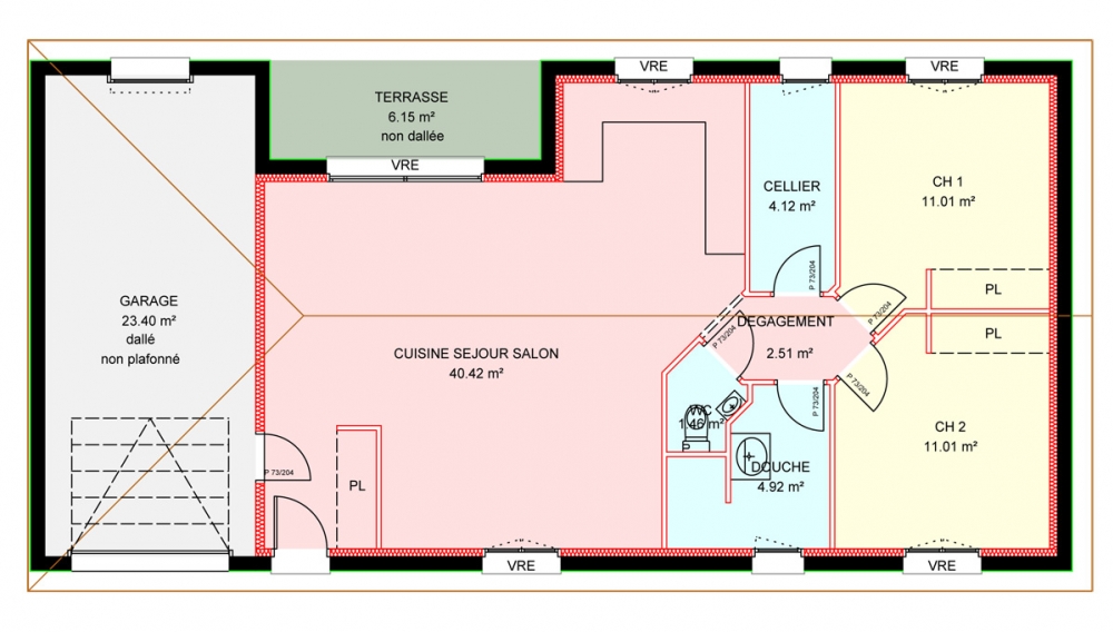
Maisons plain pied 3 chambres de 75 m² construite par Demeures Familiales


Pour toute demande d'informations, l'agence est disponible au 04 77 67 91 72

Maisons plain pied 3 chambres

Maison de plain pied avec 2 chambres, un cellier, une cuisine ouverte sur un grand séjour, une terrasse et un garage.

75 m² - Réf. : MS101

Dermander + d'informations.