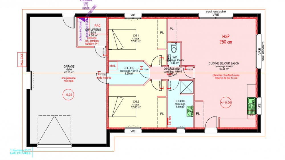
Maisons plain pied 3 chambres de 79 m² construite par Demeures Familiales


Pour toute demande d'informations, l'agence est disponible au 04 77 67 91 72

Maisons plain pied 3 chambres

Maison de plain pied avec 2 chambres, une cuisine ouverte sur un séjour, un cellier, une chaufferie et un grand garage.

79 m² - Réf. : MS171

Dermander + d'informations.