
Pour toute demande d'informations, l'agence est disponible au 04 77 67 91 72
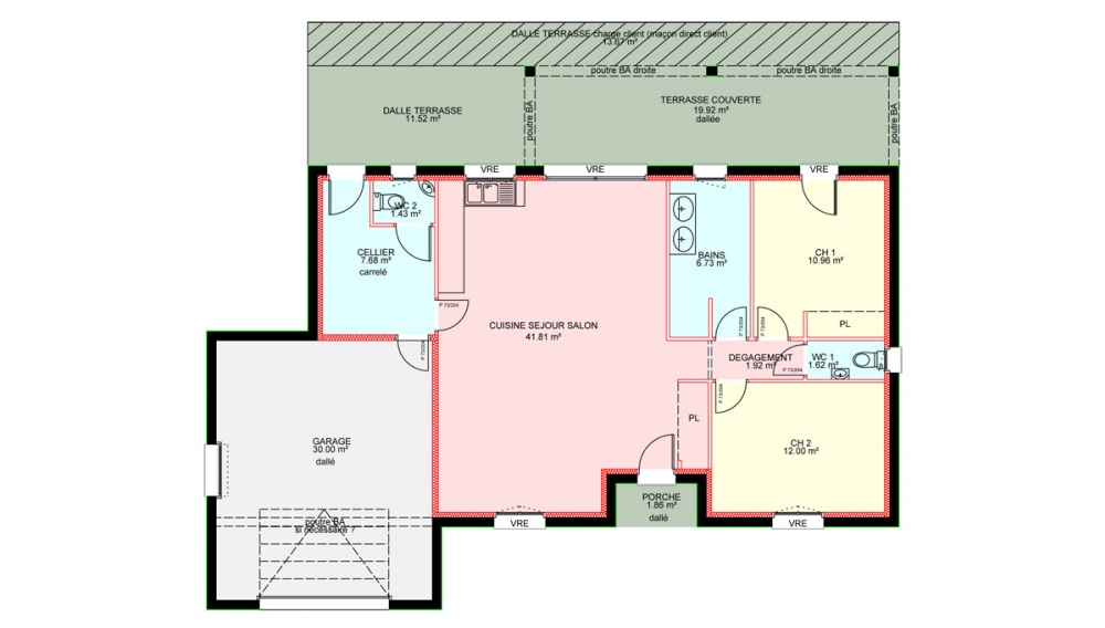
Maison de plain pied avec 2 chambres, une cuisine ouverte sur un grand séjour, un cellier, un porche, un garage et une terrasse.
84 m² - Réf. : MS110
Dermander + d'informations.



