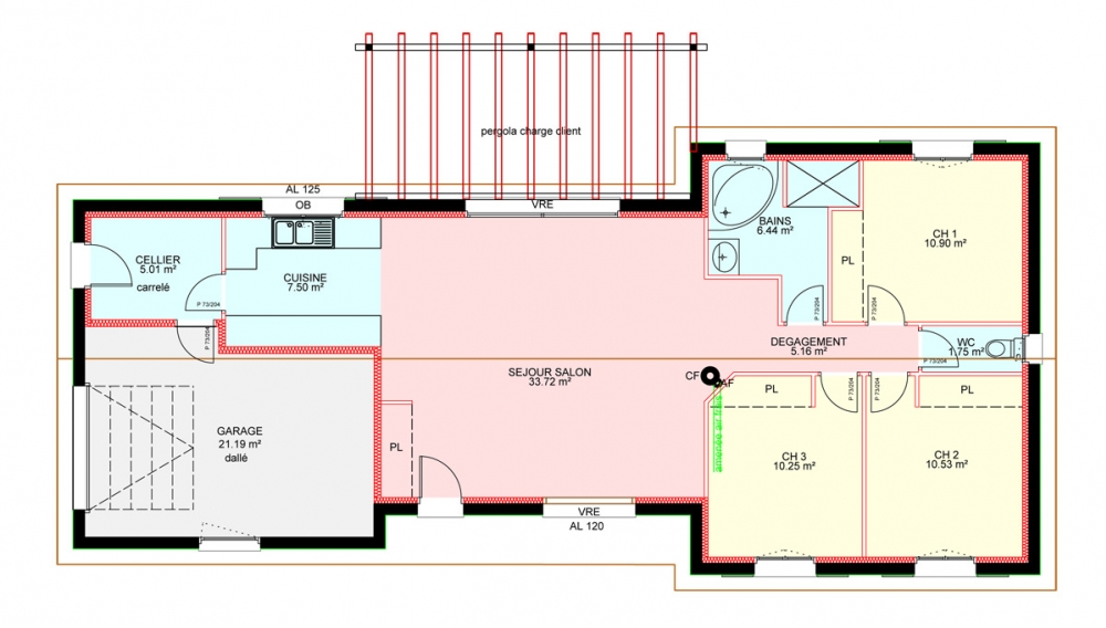
Maisons plain pied 3 chambres de 86 m² construite par Demeures Familiales


Pour toute demande d'informations, l'agence est disponible au 04 77 67 91 72

Maisons plain pied 3 chambres

Maison de plain pied avec 3 chambres, une cuisine ouverte sur le séjour, un cellier, un garage et une pergola.

86 m² - Réf. : MS74

Dermander + d'informations.