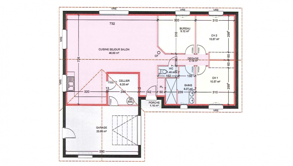
Maisons plain pied 3 chambres de 88 m² construite par Demeures Familiales


Pour toute demande d'informations, l'agence est disponible au 04 77 67 91 72

Maisons plain pied 3 chambres

Maison de plain pied avec 2 chambres et un bureau, un cellier, une cuisine ouverte sur le séjour, un porche et un garage.

88 m² - Réf. : MS35

Dermander + d'informations.