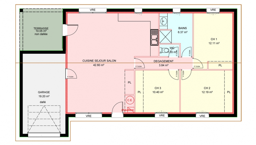
Maisons plain pied 3 chambres de 89 m² construite par Demeures Familiales


Pour toute demande d'informations, l'agence est disponible au 04 77 67 91 72

Maisons plain pied 3 chambres

Maison de plain pied avec 3 chambres, une cuisine ouverte sur un grand séjour, un garage et une terrasse.

89 m² - Réf. : MS76

Dermander + d'informations.