Maisons plain pied 3 chambres de 90 m² construite par Demeures Familiales


Pour toute demande d'informations, l'agence est disponible au 04 77 67 91 72

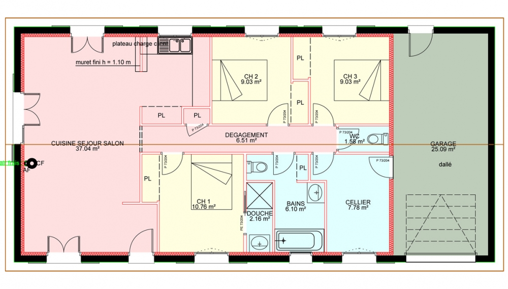
Maisons plain pied 3 chambres

Maison de plain pied avec 3 chambres, un cuisine ouverte sur le séjour, un cellier, 2 WC et un garage.

90 m² - Réf. : MS69

Dermander + d'informations.