
Pour toute demande d'informations, l'agence est disponible au 04 77 67 91 72
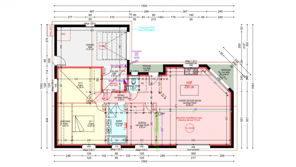
Maison de plain pied avec 2 chambres et 1 bureau, une cuisine ouverte sur un grand séjour, un cellier, un garage, un porche et une petite terrasse.
91 m² - Réf. : MS176
Dermander + d'informations.



