Maisons plain pied 3 chambres de 91 m² construite par Demeures Familiales


Pour toute demande d'informations, l'agence est disponible au 04 77 67 91 72

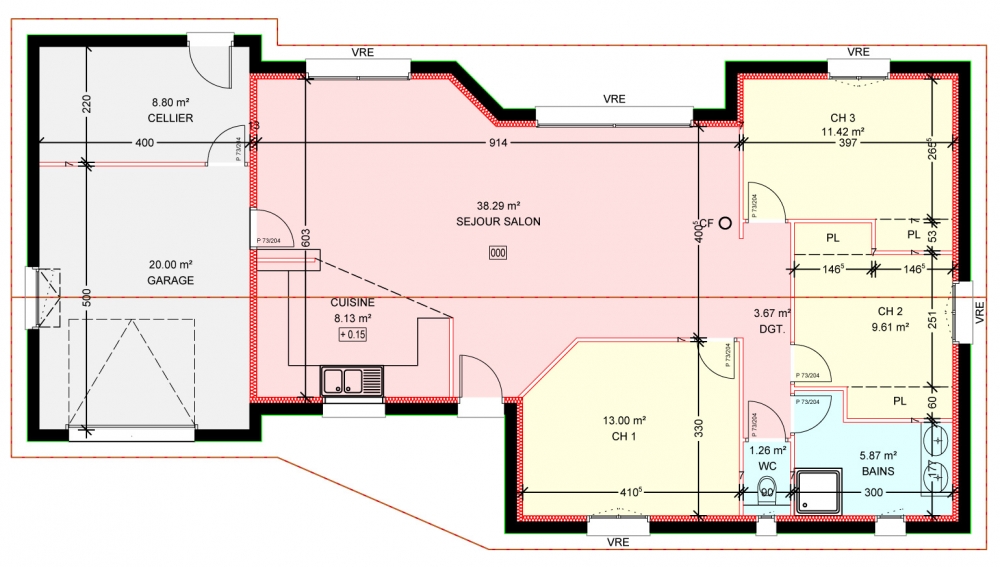
Maisons plain pied 3 chambres

Maison de plain pied avec 3 chambres. Cuisine ouverte sur séjour, cellier et garage.

91 m² - Réf. : MS31

Dermander + d'informations.