
Pour toute demande d'informations, l'agence est disponible au 04 77 67 91 72
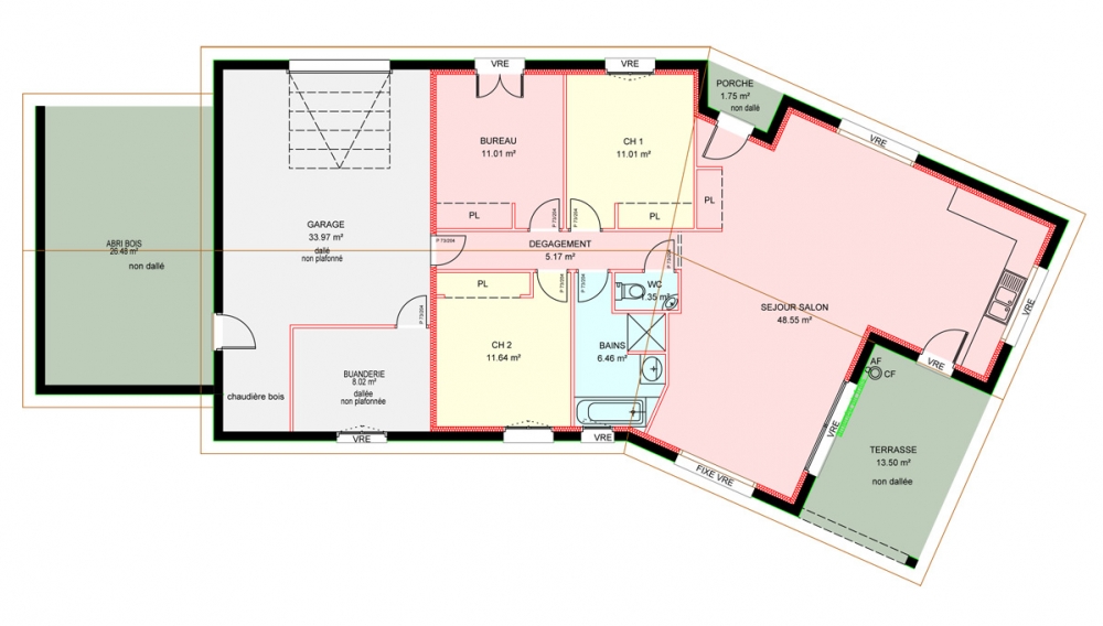
Maison de plain pied avec 2 chambres, un bureau, une cuisine ouverte sur un grand séjour, une buanderie, une terrasse, un porche, un grand garage et un abris bois.
95 m² - Réf. : MS111
Dermander + d'informations.



