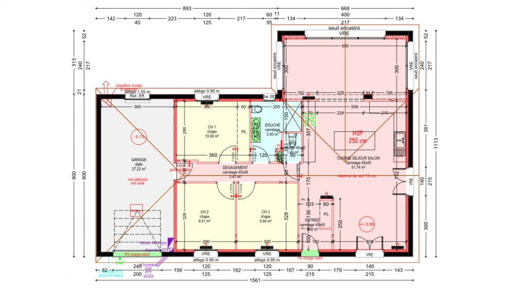
Maisons plain pied 3 chambres de 98 m² construite par Demeures Familiales


Pour toute demande d'informations, l'agence est disponible au 04 77 67 91 72

Maisons plain pied 3 chambres

Maison de plain pied avec 3 chambres, une cuisine sur un séjour double et un garage.

98 m² - Réf. : MS183

Dermander + d'informations.