Maisons plain pied 4 chambres de 102 m² construite par Demeures Familiales


Pour toute demande d'informations, l'agence est disponible au 04 77 67 91 72

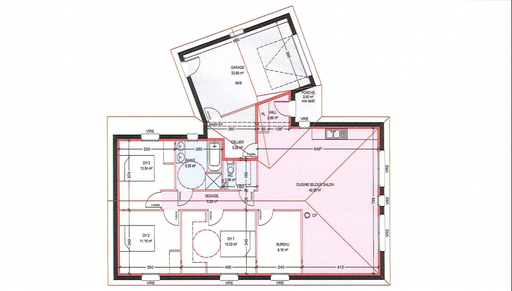
Maisons plain pied 4 chambres

Maison de plain pied avec 3 chambres et un bureau, cuisine ouverte sur un grand séjour, un cellier, un porche et un garage.

102 m² - Réf. : MS39

Dermander + d'informations.