
Pour toute demande d'informations, l'agence est disponible au 04 77 67 91 72
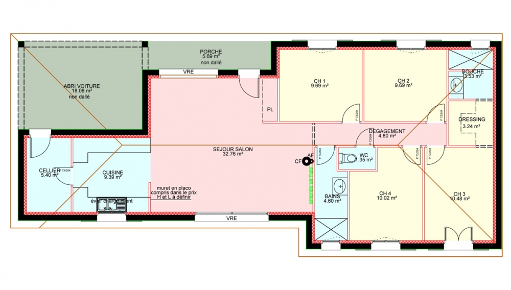
Maison de plain pied avec 4 chambres, un dressing, 2 salles de bain, une cuisine ouverte sur le séjour, un cellier, un porche et un abris pour voiture.
105 m² - Réf. : MS73
Dermander + d'informations.



