
Pour toute demande d'informations, l'agence est disponible au 04 77 67 91 72
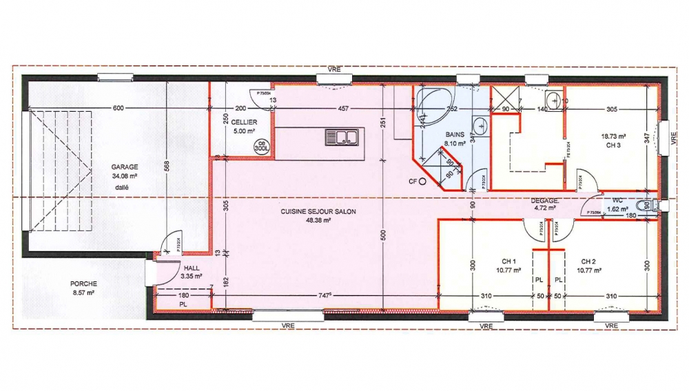
Maison de plain pied avec 3 chambres, un dressing, une cuisine ouverte sur un grand séjour, un cellier, un porche et un grand garage.
106 m² - Réf. : MS36
Dermander + d'informations.


