Maisons plain pied 4 chambres de 107 m² construite par Demeures Familiales


Pour toute demande d'informations, l'agence est disponible au 04 77 67 91 72

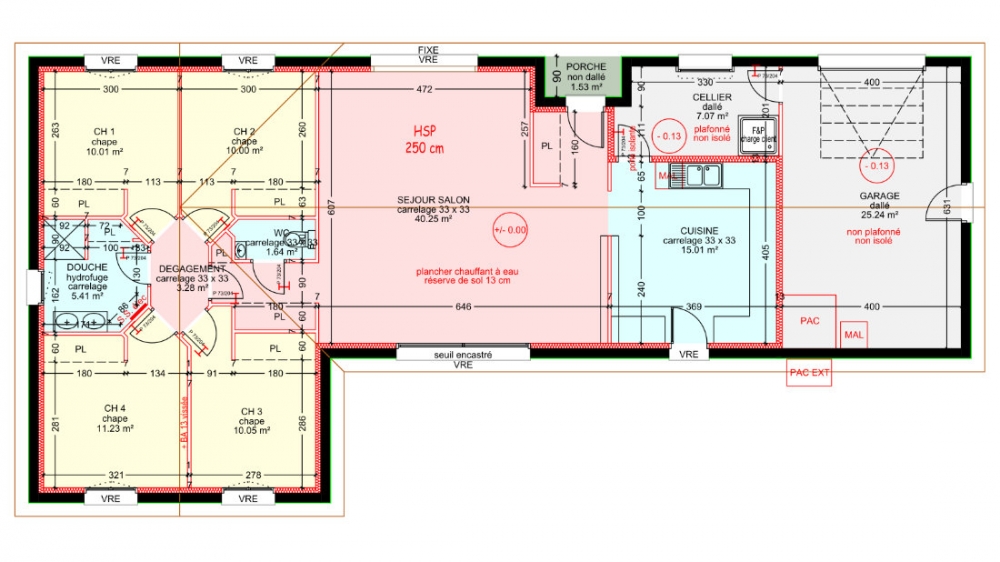
Maisons plain pied 4 chambres

Maison de plain pied avec 4 chambres, une cuisine indépendante, un grand séjour, un cellier, un garage et un porche.

107 m² - Réf. : MS142

Dermander + d'informations.