
Pour toute demande d'informations, l'agence est disponible au 04 77 67 91 72
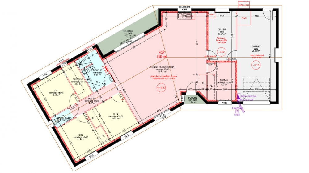
Maison de plain pied avec 3 chambres, un dressing, une cuisine ouverte sur un grand séjour, un bureau, un cellier, un garage, un porche et une terrasse.
110 m² - Réf. : MS147
Dermander + d'informations.



