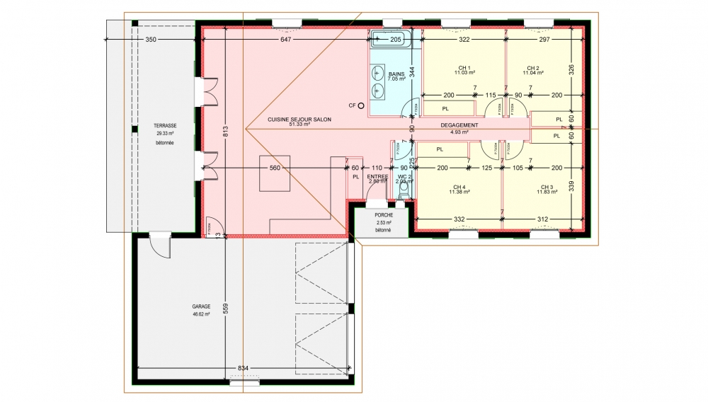
Maisons plain pied 4 chambres de 113 m² construite par Demeures Familiales


Pour toute demande d'informations, l'agence est disponible au 04 77 67 91 72

Maisons plain pied 4 chambres

Maison de plain pied avec 4 chambres, cuisine ouverte sur grand séjour, grand garage, porche et terrasse.

113 m² - Réf. : MS17

Dermander + d'informations.