
Pour toute demande d'informations, l'agence est disponible au 04 77 67 91 72
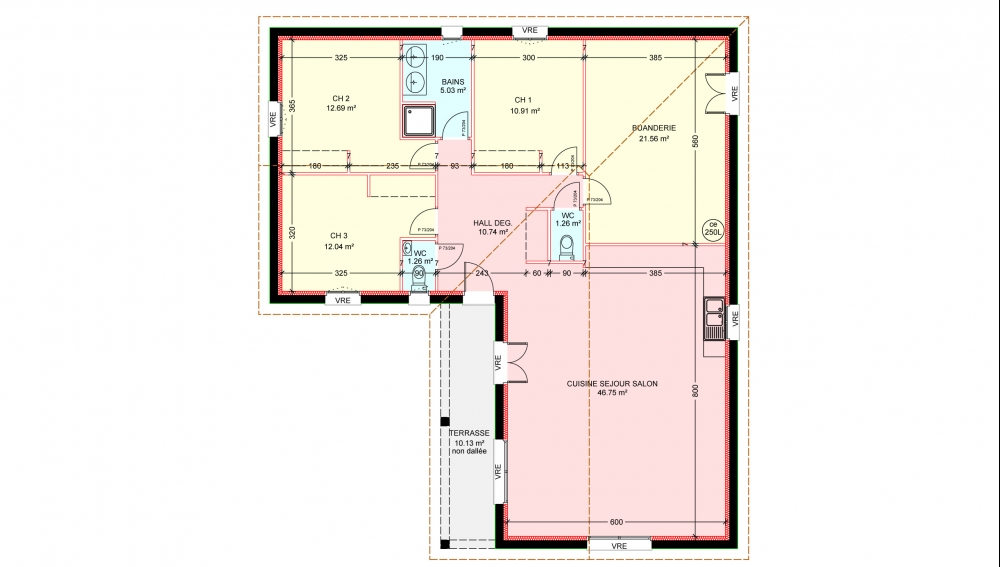
Maison de plain pied avec 3 chambres et une très grande buanderie, 2 WC, une cuisine ouverte sur un grand séjour et une terrasse.
122 m² - Réf. : MS61
Dermander + d'informations.


