
Pour toute demande d'informations, l'agence est disponible au 04 77 67 91 72
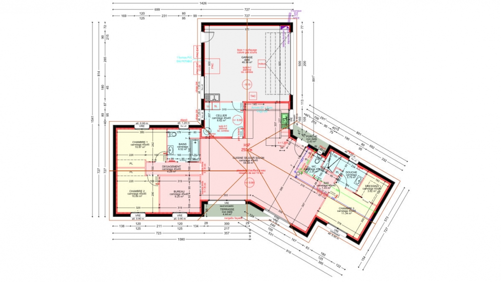
Maison de plain pied avec 3 chambres, un dressing et un bureau, 2 salles de bain, une cuisine ouverte sur un grand séjour, un cellier, un garage double, un porche et une petite terrasse.
126 m² - Réf. : MS184
Dermander + d'informations.



