
Pour toute demande d'informations, l'agence est disponible au 04 77 67 91 72
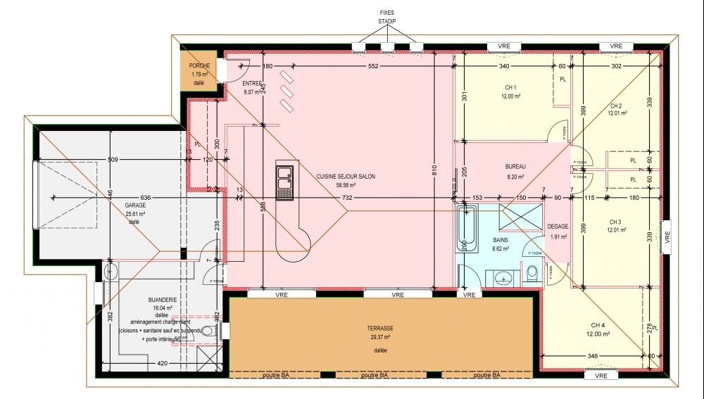
Maison de plain pied avec 4 chambres et un bureau, une grande buanderie, un hall d'entrée, une cuisine ouverte sur un grand séjour, un porche, une terrasse et un grand garage.
133 m² - Réf. : MS44
Dermander + d'informations.



