
Pour toute demande d'informations, l'agence est disponible au 04 77 67 91 72
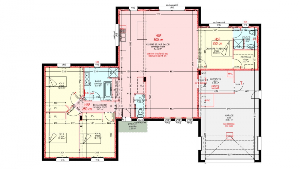
Maison de plain pied avec 4 chambres, un dressing, 2 salles de bain et 2 WC, une cuisine ouverte sur un grand séjour, une buanderie, un grand garage et un porche.
138 m² - Réf. : MS139
Dermander + d'informations.



