
Pour toute demande d'informations, l'agence est disponible au 04 77 67 91 72
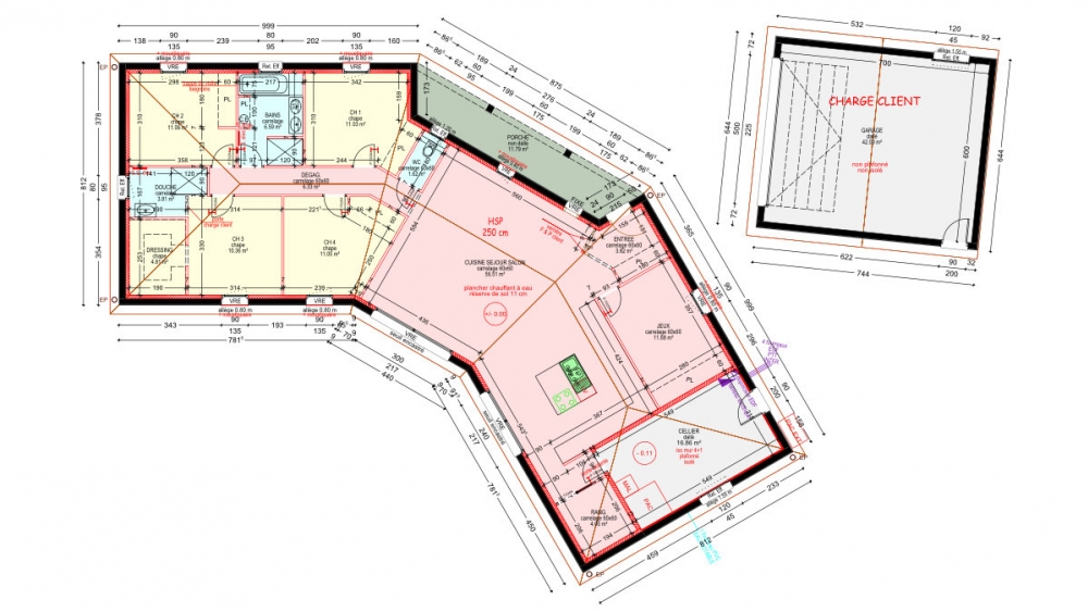
Maison de plain pied avec 4 chambres, un dressing, 2 salles de bain, une salle de jeu, une entrée indépendante, une cuisine ouverte sur un grand séjour, un cellier, un grand porche et un garage indépendant.
143 m² - Réf. : MS182
Dermander + d'informations.



