
Pour toute demande d'informations, l'agence est disponible au 04 77 67 91 72
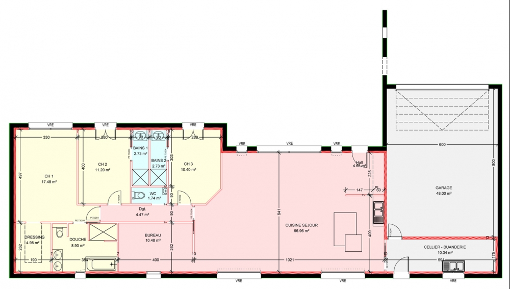
Maison de plain pied à toit plat, avec 3 chambres et un bureau, 3 salles de bains, un dressing, une cuisine ouverte sur un très grand séjour, un cellier / buanderie et un grand garage.
146 m² - Réf. : MS59
Dermander + d'informations.


