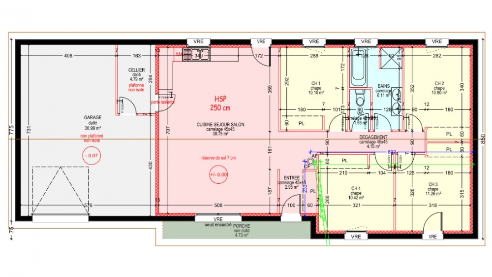
Maisons plain pied 4 chambres de 96 m² construite par Demeures Familiales


Pour toute demande d'informations, l'agence est disponible au 04 77 67 91 72

Maisons plain pied 4 chambres

Maison de plain pied avec 4 chambres, une cuisine ouverte sur un séjour, un cellier, un grand garage et un porche.

96 m² - Réf. : MS133

Dermander + d'informations.