
Pour toute demande d'informations, l'agence est disponible au 04 77 67 91 72
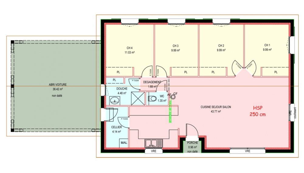
Maison de plain pied avec 4 chambres, une cuisine ouverte sur un grand séjour, un cellier, un porche et un grand abris voiture.
96 m² - Réf. : MS97
Dermander + d'informations.



