Maisons plain pied 4 chambres de 97 m² construite par Demeures Familiales


Pour toute demande d'informations, l'agence est disponible au 04 77 67 91 72

Maisons plain pied 4 chambres

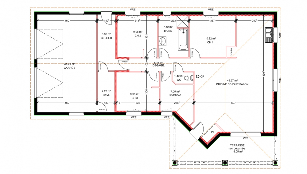
Maison plain pied avec 3 chambres et un bureau, cellier, cave, cuisine ouverte sur grand séjour, garage et terrasse.

97 m² - Réf. : MS10

Dermander + d'informations.