
Pour toute demande d'informations, l'agence est disponible au 04 77 67 91 72
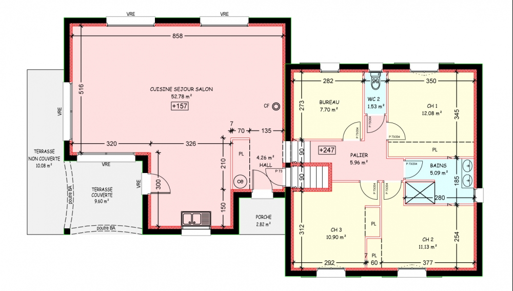
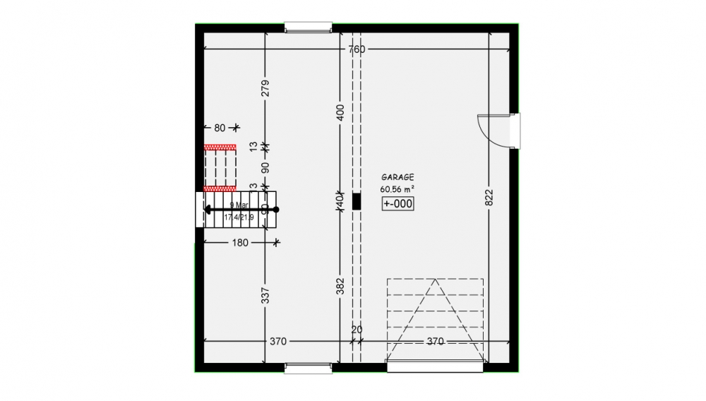
Maison sur sous-sol avec 3 chambres et un bureau, cuisine ouverte sur un grand séjour, porche d'entrée, grande terrasse partiellement couverte, très grand garage.
111 m² - Réf. : MS9
Dermander + d'informations.


