
Pour toute demande d'informations, l'agence est disponible au 04 77 67 91 72
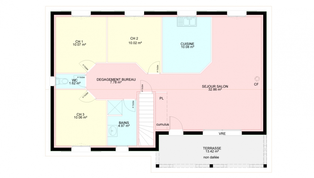
Maison sur sous-sol avec 3 chambres, un bureau atypique, une cuisine indépendante, un grand séjour, une terrasse et un très grand garage en sous-sol.
87 m² - Réf. : MS20
Dermander + d'informations.


