
Pour toute demande d'informations, l'agence est disponible au 04 77 67 91 72
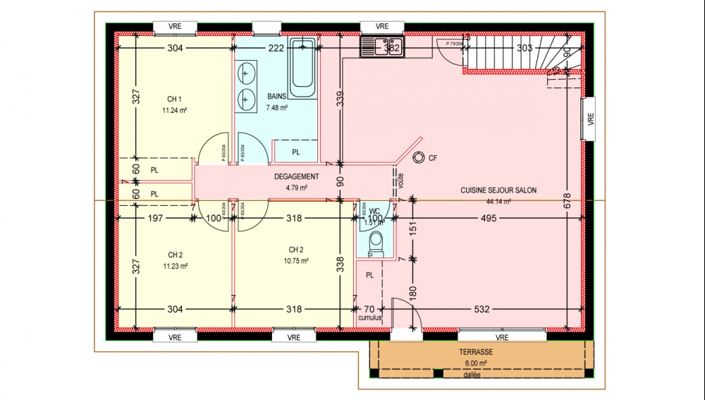
Maison sur sous-sol avec 3 chambres et un grand séjour avec cuisine ouverte. Terrasse de 6m² et très grand garage en sous-sol de 97m².
91 m² - Réf. : MS7
Dermander + d'informations.


